Kérdése van? LÉPJEN VELÜNK KAPCSOLATBA!

GYORS KAPCSOLATFELVÉTEL!

M3T1
M3T1 M3T1 M3T1 M3T1 M3T1 M3T1
Alaprajz letöltése (pdf)

M3T1

M3T1 - Ahol minden nap egy ünnep!

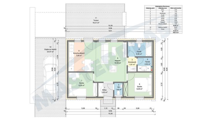
Alapterület
55,92 m2
Szobák száma
2 szoba + nappali
Hány főnek ajánljuk
2 felnőtt és 1 gyerek
Energetikai besorolás
A (napelem nélkül)

Az M3T1 típusterv megfelel az új lakhatási támogatásnak!

Pontos helyiséglista

Helyiség neve terület (m2)
Előszoba 2,63
WC 1,53
Közlekedő 1,61
Mosókonyha 4,49
Tároló 2,52
Szoba 1 8,26
Szoba 2 8,26
Nappali 19,58
Konyha - Étkező 7,04

Műszaki információk

Masterplast 3D Moduláris családi házak standard műszaki tartalma, felszereltsége:

Lépj velünk kapcsolatba

MASTERPLAST MODULHOUSE KFT.

8143, Sárszentmihály, Árpád u. 1/A

+36 70 658 2239

modulhouse@masterplast.hu

Kérdése van?
Írjon most nekünk!

Helyes formátum például +36 (1) 123-4567, vagy (20) 123-4567