Kérdése van? LÉPJEN VELÜNK KAPCSOLATBA!

GYORS KAPCSOLATFELVÉTEL!

M3T5
M3T5 M3T5 M3T5 M3T5 M3T5 M3T5
Alaprajz letöltése (pdf)

M3T5

M3T5 - Letisztult design, időtálló érték!

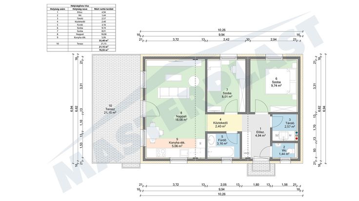
Alapterület
55,73 m2
Szobák száma
2 szoba + nappali
Hány főnek ajánljuk
2 felnőtt és 1 gyerek
Energetikai besorolás
A (napelem nélkül)

Az M3T5 típusterv megfelel az új lakhatási támogatásnak!

Pontos helyiséglista

Helyiség neve terület (m2)
Előszoba 5,08
WC 1,63
Tároló 2,57
Közlekedő 2,40
Fürdő 3,16
Szoba 1 9,74
Szoba 2 8,01
Nappali 18,08
Konyha - Étkező 5,06

Műszaki információk

Masterplast 3D Moduláris családi házak standard műszaki tartalma, felszereltsége:

Lépj velünk kapcsolatba

MASTERPLAST MODULHOUSE KFT.

8143, Sárszentmihály, Árpád u. 1/A

+36 70 658 2239

modulhouse@masterplast.hu

Kérdése van?
Írjon most nekünk!

Helyes formátum például +36 (1) 123-4567, vagy (20) 123-4567