Kérdése van? LÉPJEN VELÜNK KAPCSOLATBA!

GYORS KAPCSOLATFELVÉTEL!

M4T4
M4T4 M4T4 M4T4 M4T4 M4T4 M4T4
Alaprajz letöltése (pdf)

M4T4

M4T4 - Harmónia a természet és otthona között!

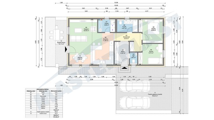
Alapterület
75,46 m2
Szobák száma
2 szoba + nappali
Hány főnek ajánljuk
2 felnőtt és 1 gyerek
Energetikai besorolás
A (napelem nélkül)

Pontos helyiséglista

Helyiség neve terület (m2)
Előszoba 6,32
WC 1,67
Közlekedő 6,50
Szoba 1 8,74
Szoba 2 9,90
Fürdő 4,97
Tároló 3,98
Konyha 11,08
Nappali 19,09
Étkező 3,21

Műszaki információk

Masterplast 3D Moduláris családi házak standard műszaki tartalma, felszereltsége:

Lépj velünk kapcsolatba

MASTERPLAST MODULHOUSE KFT.

8143, Sárszentmihály, Árpád u. 1/A

+36 70 658 2239

modulhouse@masterplast.hu

Kérdése van?
Írjon most nekünk!

Helyes formátum például +36 (1) 123-4567, vagy (20) 123-4567